Tissot 16-18

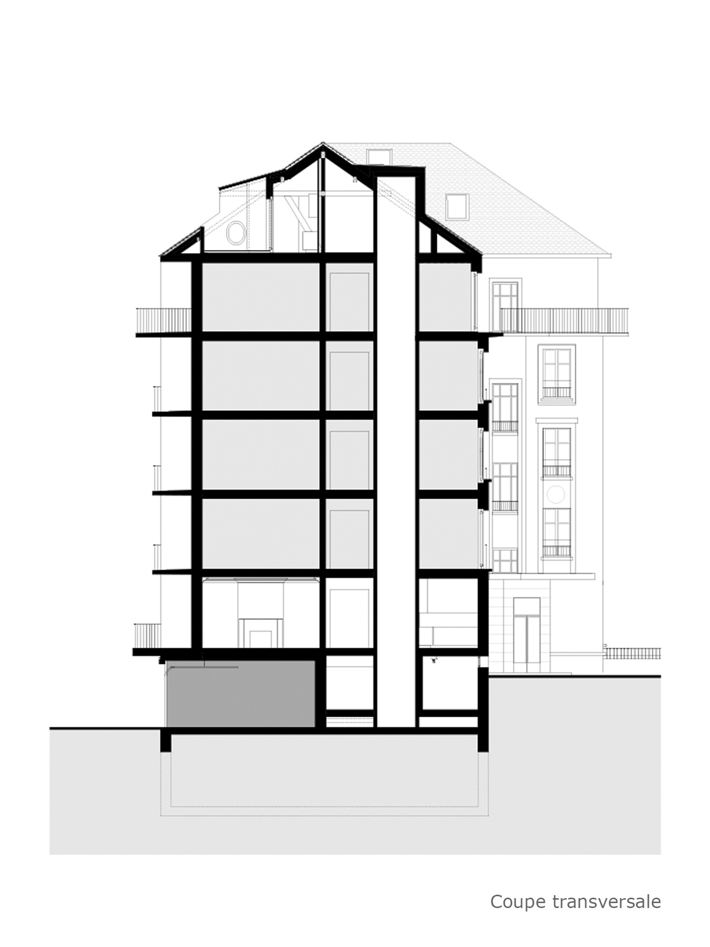
The project to transform the Tissot 16-18 building in Lausanne is a representative example of controlled urban densification, centred around a listed building. Built in 1928 by architect Charles Thévenaz and classified as a Grade 3 listed building in the architectural census of the Canton of Vaud, this bourgeois building featured 5- to 7-room apartments that had become unsuitable for the contemporary rental market. The project redefined the use of these spaces by adapting them to current standards, while creating two additional dwellings in the attic.

The project blends harmoniously into the dense urban fabric, fully respecting the building's exterior features. The work has enhanced the original architectural elements (mouldings, woodwork, enfilades), while ensuring a rational interior reorganisation. The virtual absence of work on the façades, due to the building's classification, has reinforced the heritage integration of the operation. Interior comfort has been enhanced without compromising the identity of the place.

The reconfiguration of the flats allows for a rental offer that is better suited to demand in terms of surface area and functionality. The programme has resulted in nine new flats, while maintaining the original quality and standard. The building's reputation and its central location in
Lausanne contribute to its real estate value.

Working on an occupied and listed building imposed major constraints. Coordination with heritage services, management of technical verticalities in a constrained site, and the creation of apartments in the attic required a meticulous technical and organisational approach. The maintenance of the existing structure, fire safety standards and acoustic requirements were integrated with precision.

The sustainability of the project is based on a realistic and sober strategy: reuse of existing materials (parquet flooring, doors, handles, beams), replacement of oil heating with a gas system, with connection to district heating planned in the medium term. Reinforced insulation of the attic and optimised redistribution of technical networks contribute to the overall improvement of energy performance, while respecting heritage constraints.

Tissot 16-18

Project
Tissot 16-18
Program
Transformation de logements
status
Built
location
Suisse, Lausanne
year
2018 - 2025
Client
Vaudoise Assurance SA
Floor area
1600 m2
Collaborators
Antoine Barc, Santiago Pagés, Irene Giovanetti, Manuela Toscan- Essyad, Nancy Julio-Vilali, Christian Leibbrandt, Romain Péquin, Mauro Branco
Total
contractor
Marti Construction SA
Structural
engineer
BG Ingénieurs Conseils SA
HVAC
engineer
Chuard Ingénieurs Vaud SA
Sanitary
engineer
Fluides Concepts SA
Electrical
engineer
CICE SA
Acoustical
consultant
AER Acousticiens
Others
consultants
Physicien du bâtiment: Sorane SA
Photo
credits
© Hiris Sacha di Poi
Tissot 16-18

Tissot 16-18

2018 - 2025 · Suisse, Lausanne · Housing » Grouped

The project to transform the Tissot 16-18 building in Lausanne is a representative example of controlled urban densification, centred around a listed building. Built in 1928 by architect Charles Thévenaz and classified as a Grade 3 listed building in the architectural census of the Canton of Vaud, this bourgeois building featured 5- to 7-room apartments that had become unsuitable for the contemporary rental market. The project redefined the use of these spaces by adapting them to current standards, while creating two additional dwellings in the attic.
+ read more
Project
Tissot 16-18
status
Built
location
Suisse, Lausanne
year
2018 - 2025
Client
Vaudoise Assurance SA
Floor area
1600 m2
+ credits