Rue du Jura 6

In 2011, RDR architects completed the complete transformation of a building that had belonged to the Marsens printing company at 9-11 Rue du Jura, converting the original industrial structure into business premises and 13 lofts.

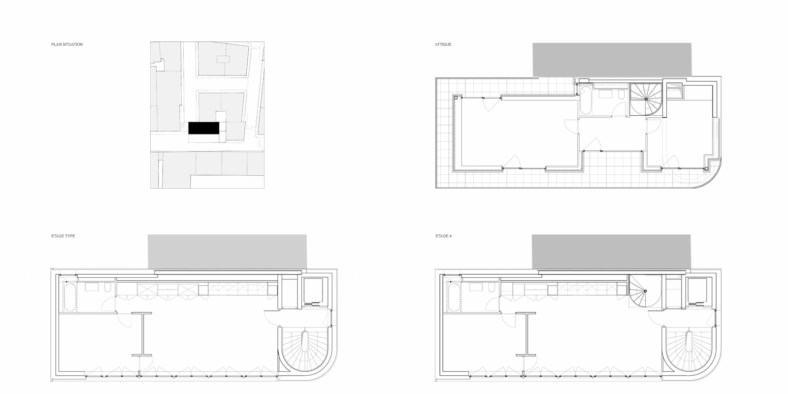
Opposite the building, a small 120m² plot still housed four car garages, the last remaining vestige of the former activity, as well as an electrical substation supplying the neighbourhood.

In 2012, the new owners decided to redevelop the plot and enhance this residual urban space.

The project developed by RDR architects resulted in the construction of a small building with four flats floating above an open ground floor with four outdoor parking spaces.

The new building is built against the blind gable of the building at 7 Rue des Échelettes, restoring continuity to the façades on the eastern side of Rue du Jura, while freeing up the ground floor and preserving a visual opening onto Rue des Échelettes.


The small size of the plot, accentuated by the expropriation of an area for public use, explains the decision to create a basement to house the electrical substation, cellars and technical rooms.

The ground floor, thus freed up, accommodates parking spaces and access to a vertical circulation core serving three two-room apartments, one per floor, as well as a 4.5-room duplex at the top of the attic.

Due to the narrowness of the plot, the apartments are laid out in a linear fashion: the stairwell leads to a large living room, which in turn leads to a bedroom and a shower room.

This spatial structure is reinforced by the interior layout. A long unit against the party wall houses the kitchen units, followed by cupboards leading to the bathroom. At the far end of the living room, a niche symmetrically separates the two entrances to the bedroom, reinforcing the directional nature of the space.

The structure is presented as a concrete box linked to the vertical circulation core and supported by a V-shaped pillar. The narrowness of the entrances and the available space determined the choice of construction system: prefabricated hollow core slabs supported by the party wall and the beams on the façade acting as counter-hearts.

The insulated façade is clad in anodised aluminium sheet, corrugated for the counter-beams and smooth for the mullions. The rear façade is covered with perforated sheet metal that integrates the blind party wall and the bathroom windows, reinforcing the coherence and unity of the envelope and, by extension, the building.


The expression of the façades, the choice of materials, and the treatment of details—such as the rounded edges at the bottom of the façade and the strip window frames—reinforce the unique character of this small structure, which, while asserting its singularity, blends naturally into its context.

Rue du Jura 6

Project
Rue du Jura 6
Program

Construction of a building with 4 urban lofts

status
Built
location
Suisse, Lausanne
year
2014 - 2015
Client
Private client
Team
Lausanne

 Jacques Richter, Ignacio Dahl Rocha, Hiliario Dahl Rocha, Frédéric Comby, Christophe Gachnang, Carine Nilson, Maialen Monte, Pouska Haessig

Structural
engineer
Ingeni SA
Acoustical
consultant
d'Silence acoustique sa
Others
consultants
ER Energies Rationnelles SA
Photo
credits
Jeremy Bierer
Rue du Jura 6

Rue du Jura 6

2014 - 2015 · Suisse, Lausanne · Housing » Grouped

This small building, constructed by RDR architects in 2014-2015, houses four apartments floating above an open ground floor with four outdoor parking spaces and access to the vertical circulation core.
The volumetry, the expression of the façades, the choice of materials, and the treatment of details—such as the rounded edges at the bottom of the façade and the strip window frames—reinforce the unique character of this small building, which, while asserting its singularity, blends naturally into its surroundings.
+ read more
Project
Rue du Jura 6
status
Built
location
Suisse, Lausanne
year
2014 - 2015
Client
Private client
+ credits