Concours Schenk à Rolle – La Cité du Vin

In March 2022, four investors and owners – Helvetia Insurance, Raiffeisen Pension Fund, Previa Prévoyance, and Haller SA, which is also acting as organiser – launched an invitation-only architectural competition for the design and construction of a new neighbourhood in the immediate vicinity of Rolle railway station.

The current site has been occupied by the Schenk SA Group since 1893.
One of Europe's leading wine producers and the number one in Switzerland, the Schenk Group plans to relocate its activities to a new production site.

The ‘Gare Nord – Schenk’ neighbourhood plan provides for the construction of a residential neighbourhood and an industrial site on two plots of land between the station and the A1 motorway. It is on plot no. 427 that the landowner Schenk SA will build its new wine production site, freeing up plot no. 1673, which is the scope of the competition.

The competition focuses on the development of a neighbourhood that promotes diversity: social diversity, thanks to a diverse range of housing for a wide range of target groups in terms of age, living situation, social background and professional activity, but also diversity in terms of activities: restaurants, local shops, office space, crafts and education.

The owners wish to ‘demonstrate that it is possible to develop a high-quality urban and architectural project on the plot that blends perfectly into the existing natural and urban landscape of Rolle. The future site of the ’Cité du Vin‘ will create a lively and diverse neighbourhood with a strong and vibrant identity, offering a wide range of services and varied types of housing.’


The Ligne de vigne project presented by RDR architects and its partners explores the theme of peri-urban densification within the framework of a neighbourhood plan that is already very specific in terms of the distribution of built masses, their volume, and the relationship between solids and voids.
Noise and nuisances associated with road and rail traffic, as well as OPAM risks and hazards, call for the development of typological measures to transform these significant constraints into project opportunities.

The use of the margins offered by the neighbourhood plan and the precise and thoughtful positioning of the buildings enhance the quality and character of the open spaces and offer multiple and diverse orientations in a neighbourhood designed on a human scale.

The neighbourhood is organised around a large park with high environmental value and public spaces reminiscent of the site's wine-growing history.

Two major spaces structure the site and help define the neighbourhood's identity. The transverse pedestrian axis, ‘La Ligne de vigne’ (The Vine Line), which connects the new Place de la Gare with the ‘Pavillon de dégustation’ (Tasting Pavilion) on the edge of Schenk's new production site, provides access to the housing and the ‘Parc des Sarments’ (Vine Park).
The Parc des Sarments, a large wooded area that includes meeting and relaxation spaces, an educational trail, as well as playgrounds and school playgrounds, also provides access to the housing, offering residents a daily shortcut under the cool canopy.

The terraced layout of the plot leads to the differentiation of two plateaus, with the upper level hosting the park and the succession of buildings that border it, while on the lower level, the more mineral-like Rue des Tonnelles concentrates commercial activities, directly linked to the Place de la Gare, whose role as a modal platform reinforces its status as the gateway to the neighbourhood and the town of Rolle.

The new neighbourhood distributes a programme of activities and public facilities over several levels.
The commercial areas are distributed along Rue des Tonnelles, in the immediate vicinity of the station, taking advantage of the dynamic nature of the modal platform and the daily journeys it accommodates. The overhangs above the shops accommodate various public terraces that can also be used for small catering areas in the generous sunshine.
At the Parc des Sarments, pride of place is given to free activities such as walking and relaxing in quiet spaces. A playground at the western end of the park offers a variety of play facilities open to the public. This activity clearing forms a natural continuation of the Ceps school playground, in close proximity to the ‘Ligne de Vigne’.
The northern part of the site benefits from a calmer atmosphere, providing space for small urban vegetable gardens available to residents and nearby neighbours.

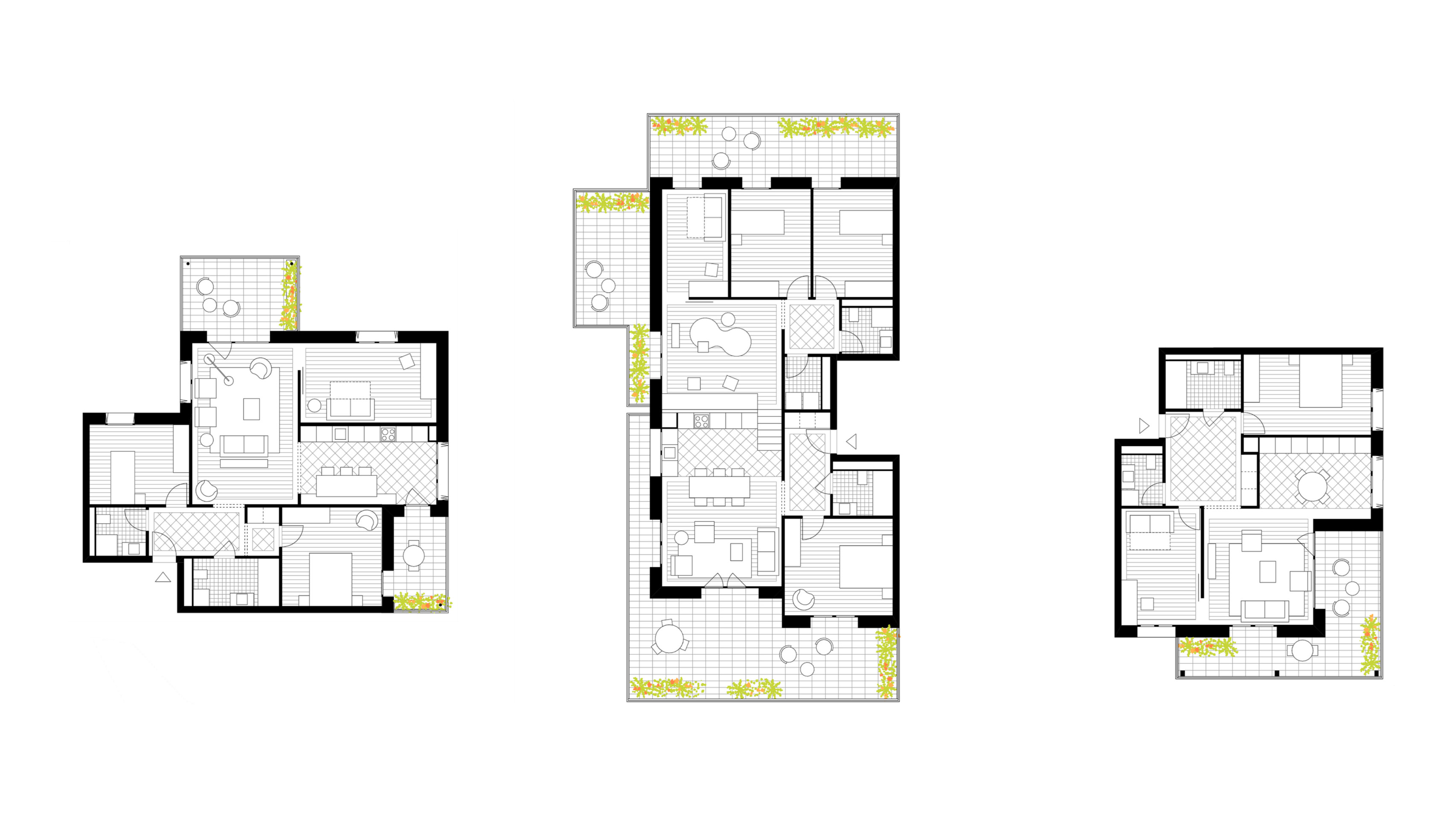
The typological and morphological design forges a close link between the volumetric perception of the neighbourhood, the open spaces (particularly the Parc des Sarments) and the quality of the apartments. The façades are broken down into different sections, reducing the impact and massiveness of the volumes and making the dwellings more legible and identifiable.

The typology of the dwellings is rich and diverse. The types of flats are varied, some single-facing, most of them dual-facing or corner flats. Their layout is adapted according to their size, their position in the neighbourhood and their orientation, offering a variety of ways of occupying them and relating to the built or natural environment.

The typological design gives each apartment a view of the park, the lake, the mountains and/or the south. Some apartments benefit from three to four orientations, views and high-quality sunlight, bringing them closer to the idea of individual housing than dense collective housing.
The variety of spatial configurations, the diversity of living spaces - compact single-aspect or corner living rooms, dual-aspect rooms, ‘bayonet’ rooms, as well as the integration of rooms with flexible uses and appropriations - allow for a variety of living styles, catering to a wide range of potential tenants.

The site's vegetation marks a gradual transition to the local tree cover at the interface with the Cité du Vin. It is anchored to the local context through the existing alignments on its periphery to develop a continuous and resilient urban canopy.
The ascent of the ‘Ligne de Vigne’ towards the heart of the neighbourhood brings residents and visitors to the gates of an intimate park. The Parc des Sarments includes an urban grove whose canopy of varying heights provides shade, coolness, flowers, scents and colours throughout the seasons. A layer of shrubs diffusely accompanies the interior paths of the park. These groups provide a visual filter that preserves the privacy of the dwellings or delimits the spaces left to local biodiversity.

The enhancement of water resources and the management of surface permeability are major challenges for the neighbourhood, particularly in terms of preserving open ground and maintaining a natural water cycle throughout the site.
The roof water retention system channels excess water to the Parc des Sarments. A series of interconnected slight depressions create a large landscaped swale in the heart of the canopy. These temporary retention and infiltration volumes allow rainwater to be returned to the vegetation and promote the creation of a natural water reserve for trees and shrubs. The water bodies may remain temporarily after rainfall, providing local and temporary refreshment, which also contributes to the well-being and enjoyment of residents.

For buildings with greater economic constraints (public housing, LUP) or OPAM requirements, a more conservative construction technology is used, with a reinforced concrete load-bearing structure and exterior walls made of cellular concrete bricks. On the other hand, in buildings without these constraints, lighter and less environmentally restrictive construction solutions are proposed, with a high degree of wood integration.
Dry screeds and a partition system with a wooden substructure are proposed for all buildings.

The competition specifications require the aim of achieving Site 2000 watts certification, which will no longer exist in 2023. To fill this administrative gap, an ad hoc approach is proposed, which is to take as a reference framework the SIA 2040 technical specification The Road to Energy Efficiency (2017) - which sets quantified targets for construction, operation and mobility - and to supplement it with studies focused on the quality of the building and/or the spaces to be created.
The studies proposed by the multidisciplinary team formed for the competition make it possible to optimise the amount of natural light in living spaces, assess global warming and its impact on likely energy consumption in 2050, verify the thermal comfort of the most exposed rooms in a significantly warmer future climate, and ultimately propose viable construction options to control the environmental and sensory impact of building materials.

Concours Schenk à Rolle – La Cité du Vin

Project
Concours Schenk à Rolle – La Cité du Vin
Program
Logements, commerces, activités, école
status
Competition
location
Suisse, Rolle
year
2022 - 2022
Client
Halter SA
Team
Lausanne
Kenneth Ross, Antoine Barc, Santiago Pagés, Fabrice Passaplan, Enora Chelers, Théophane Bachollet, Raphaël Raccio, Sergio Cera
Team
Buenos Aires
Facundo Morando, Maria Bianchi, Lucía Cortegoso, Ivanna Gressani, Bruno Goroni
Team
Madrid
Federico Joltac, Guillermo Guerra, Ismael Azuara, Steve Antignac, Alberto Garmendia, José M Gastaldo
Landscape
architect
Forster Paysage Sàrl
Others
consultants
Dosta Tec
Photo
credits
Images: Atelier Brunecky
Concours Schenk à Rolle – La Cité du Vin

Concours Schenk à Rolle – La Cité du Vin

2022 - 2022 · Suisse, Rolle · Urbanism

Schenk Competition in Rolle – La Cité du Vin

Located on the current Schenk wine production site, close to Rolle railway station, this mixed-use neighbourhood project (approximately 500 homes, a school, shops and businesses) explores the theme of peri-urban densification by offering a high quality of life centred around a large park with high environmental value and public spaces that recall the site's wine-growing history. The buildings, which are varied and fragmented in type, offer multi-oriented housing, facing the lake, open spaces, light and vegetation, inviting people to live well together.
+ read more
Project
Concours Schenk à Rolle – La Cité du Vin
status
Competition
location
Suisse, Rolle
year
2022 - 2022
Client
Halter SA
+ credits