Centro de servicios para el agro. Insignia Tres Arroyos

Insignia Centers are conceived to share in the same location the research, training, marketing, commercialization and distribution of products and services for agricultural production (fuels, additives, fertilizers, seeds, etc.). The concept arises from a project competition called by YPF and are located in the main productive regions of Argentina. The first one is developed near the border of the urban area of Tres Arroyos, in the southern part of the Buenos Aires Province, along Nacional Route 3.
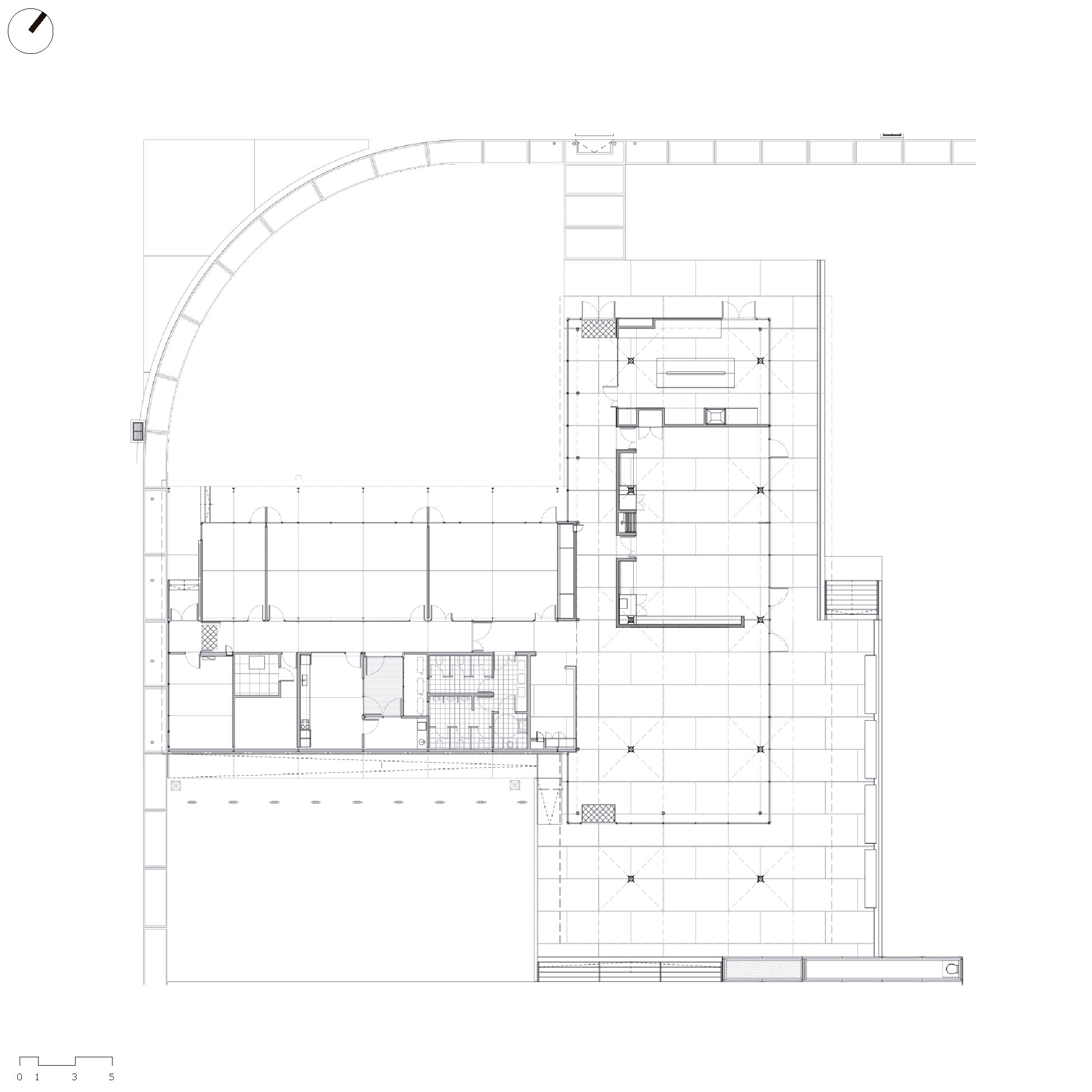
The site is organized into two complementary sectors: a public front with the Main Building and the Laboratory Park, and an operational area with a set of tanks and logistics warehouses for storage and distribution. The circulation of various heavy vehicles is structured in a comb- like form, alternating between enclosed spaces, semi covered areas and open courtyards.
The building types are developed from vaulted sheds, typical of the rural landscapes of the Argentine Pampa, which provide constructive rationality, quick assembly and economy. The way of reinterpreting this type, combining it to form a complex and varied block in the operational area and abstracting it as an isolated and floating vault in the main building, determines the main spatial, technical and aesthetic qualities of the project.
The sequence of fluctuating vaults and loading and unloading activity are arranged behind the main building, which houses flexible and multifunctional spaces essencial for social, educational and commercial activities. These spaces are integrated with the Laboratory Park through the gallery and its terrace. This is a versatile space that combines landscaped areas of native vegetation, seasonal crop fields and the exhibition of machinery and various outreach events with the community to createa unique and meaningful landscape.

Centro de servicios para el agro. Insignia Tres Arroyos

Project
Centro de servicios para el agro. Insignia Tres Arroyos
status
Built
location
Argentina, Tres Arroyos, Provincia de Buenos Aires
year
2020 - 2023
Client
YPF S.A.
Floor area
7875 m2
Team
Buenos Aires
Ignacio Dahl Rocha, Facundo Morando, Roberto Lombardi, Tomás Kenny, Bárbara Oestereicher, Juan Carlos Franchi, Franco Bisso, Rocío Pagés, Gala Traversa, Lucía Cortegoso, Juan Benítez, Josefina Previde, Ivanna Gressani, Agustín Azar, Lorenzo Rascovan, Guadalupe Castro, Valeria Tawara, Florencia Kim, Juan Shimazu, Ivan Breyter, Félix Ludueña / Estudio Emmer (Bruno Emmer) / Bulla – Diseño de paisaje (Ana García Ricci, Lucía Ardissone, Ignacio Fleurquín, Gerardo Raffo, Nicolas Patron Costas, Mariela Rotryng).
Award
3rd Place | National Prize ARQ FADEA 2024/2025, category: Obra Privada, Escala Mayor
1st prize ARQ FADEA, Región Buenos Aires, Categoría: Obra Privada, Escala Mayor
General
contractor
Constructora Sudamericana
Structural
engineer
Alberto Fainstein, Carolina Fainstein
HVAC
engineer
Emilio Emmer, Luciano Emmer
Sanitary
engineer
Jorge Labonia, Marcelo Diana
Electrical
engineer
Edgardo Sequeyra, Agustín Sequeyra
Lighting
consultant
Verónica Gilotaux
Landscape
design
Bulla
Others
consultants
Consultor de presupuesto: Hugo Bersanker. Consultor de marco normativo y dirección de obra: Franco Sarchione, Horacio Caletti, Daniel López.
Photo
credits
Iván Breyter / Drone: Hernán Menéndez - Cine Pilots
Centro de servicios para el agro. Insignia Tres Arroyos

Centro de servicios para el agro. Insignia Tres Arroyos

2020 - 2023 · Argentina, Tres Arroyos, Provincia de Buenos Aires · Industry

Insignia Centers are conceived to share in the same location the research, training, marketing, commercialization and distribution of products and services for agricultural production (fuels, additives, fertilizers, seeds, etc.). The concept arises from a project competition called by YPF and are located in the main productive regions of Argentina. The first one is developed near the border of the urban area of Tres Arroyos, in the southern part of the Buenos Aires Province, along Nacional Route 3.
The site is organized into two complementary sectors: a public front with the Main Building and the Laboratory Park, and an operational area with a set of tanks and logistics warehouses for storage and distribution. The circulation of various heavy vehicles is structured in a comb- like form, alternating between enclosed spaces, semi covered areas and open courtyards.
+ read more
Project
Centro de servicios para el agro. Insignia Tres Arroyos
status
Built
location
Argentina, Tres Arroyos, Provincia de Buenos Aires
year
2020 - 2023
Client
YPF S.A.
Floor area
7875 m2
+ credits