Avenue de Gilamont

A changing context: The Gilamont 21 project is part of a unique context, as it involves an industrial neighbourhood that is being transformed into a residential area. The new building occupies a plot of land that was originally used for industrial activities – the Grisoni Zaugg warehouse. The project involves the construction of 63 housing units and an underground car park. The flats, which vary in type and size, are intended for mid-range rental.


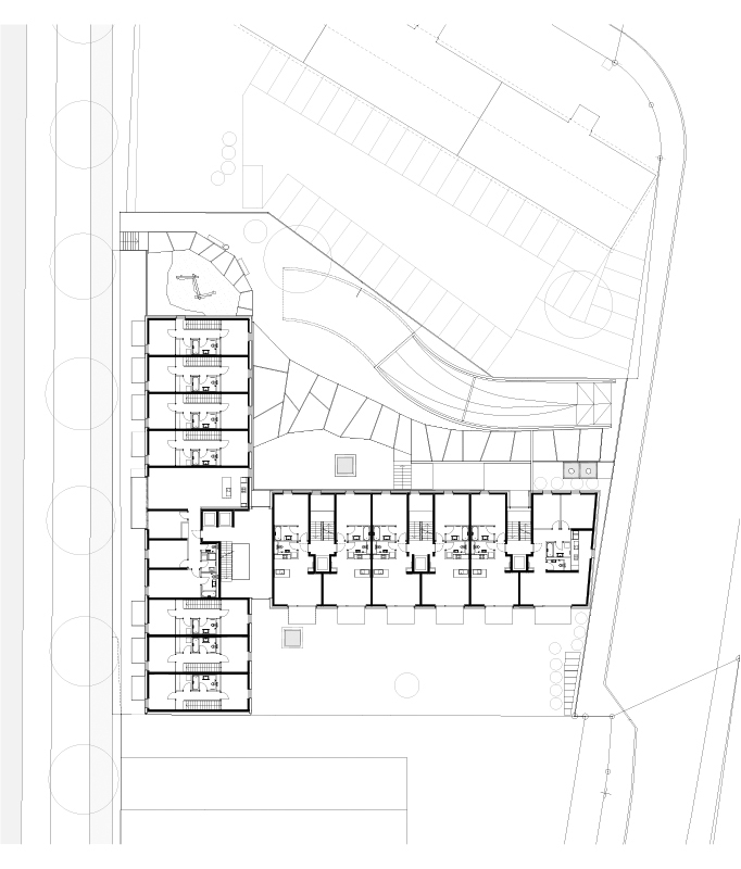
A location in relation to the environment: Two very strong elements condition and guide the project: On the one hand, Avenue Gilamont is characterised by heavy traffic. Its eastern side presents a clearly defined urban front, following a contiguous order of buildings. On the other hand, the Veveyse river, bordered by a wooded strip, marks a significant contrast, evoking a landscape and serene character. In plan, the building is T-shaped. The north/south wing follows the axis of the Veveyse river, seeking to escape the noise of Avenue Gilamont, while the east/west wing is oriented perpendicular to Avenue Gilamont, seeking privacy. This urban form offers interesting visual and spatial openings along Avenue Gilamont, avoiding reinforcing the corridor effect created by the existing built frontage. In its relationship with the topography, the building sits on the land, separating the public entrance level from the first level of the dwellings. This access arrangement gives the building a more public character in its relationship with the street, while ensuring a high degree of privacy for the flats.


Materiality: Sober and refined, the building is inspired by the site's industrial past. The desired materiality and the delicate choice of colours allow the building to blend seamlessly into the surrounding fabric. The exterior envelope is composed of simple materials (perimeter render, balconies and window frames in colinal anodised aluminium), all finished with care and punctuated by a few touches of red in a warm harmony. Slender, horizontal profiles in natural anodised aluminium mark the different levels while refining the overall volume of the building. The interior finishes were chosen for their quality, evoking a sense of domesticity and departing from the usual codes of rental buildings: exposed concrete and fine plaster for the walls, oak parquet for the floors. The exterior landscaping around the building offers friendly meeting places for residents as well as play areas for children.

Avenue de Gilamont

Project
Avenue de Gilamont
Program

2 buildings, 63 apartments

status
Built
location
Suisse, Vevey
year
2010 - 2015
Client
Edmond de Rothschild (Suisse) SA p.a. Orox Asset Management
Floor area
6579 m2
Team
Lausanne

Jacques Richter, Ignacio Dahl Rocha, Manuel Perez, Nuno Santos Perreira, Thanh-Tung Trinh, Lennart Harbich

General
contractor
Grisoni-Zaugg SA
Structural
engineer
Ingeni SA / Bureau d’Ingénieurs civils Daniel Willi SA
Geotechnical
Karakas & Français SA
Sanitary
engineer
Joseph Diémand SA
Electrical
engineer
Groupe E Connect SA
Landscape
architect
Vorlet Paysages SA
Photo
credits
Fernando Guerra FG+SG
Avenue de Gilamont

Avenue de Gilamont

2010 - 2015 · Suisse, Vevey · Housing » Grouped

A changing context: The Gilamont 21 project is part of a unique context, as it involves an industrial neighbourhood that is being transformed into a residential area. The new building occupies a plot of land that was originally used for industrial activities – the Grisoni Zaugg warehouse. The project involves the construction of 63 housing units and an underground car park. The flats, which vary in type and size, are intended for mid-range rental.
+ read more
Project
Avenue de Gilamont
status
Built
location
Suisse, Vevey
year
2010 - 2015
Client
Edmond de Rothschild (Suisse) SA p.a. Orox Asset Management
Floor area
6579 m2
+ credits